| ● 接頭 |
|
代號(訂貨號) |
管子外徑 |
D |
D1 |
D0 |
H |
H1 |
重量(kg) |
ZT6.5.13-1 |
42 |
32 |
42.5 |
60 |
36 |
18 |
0.73 |
ZT6.5.13-2 |
48 |
38 |
48.5 |
70 |
41 |
20 |
0.92 |
ZT6.5.13-3 |
60 |
49 |
60.5 |
80 |
48 |
23 |
1.43 |
|
標記示例:接頭42 ZT6.5.13-1
● 變徑接頭 |
|
代號(訂貨號) |
管子外徑(D0) |
D |
D1 |
D2 |
D3 |
L |
L1 |
重量(kg) |
ZT6.5.31-1 |
34×42 |
34.5 |
55 |
25 |
41 |
48 |
17 |
0.48 |
ZT6.5.31-2 |
42×48 |
42.5 |
60 |
32 |
48 |
52 |
18 |
0.54 |
ZT6.5.31-3 |
48×60 |
48.5 |
70 |
38 |
60 |
56 |
20 |
0.87 |
|
| 標記示例:變徑接頭34×42 ZT6.5.31-1 |
| ● 接頭 ZT6.5.33 重量0.58kg |
|
| ● 三通 |
|
代號(訂貨號) |
管子外徑(D0) |
D+0.4
+0.2 |
D1 |
D2 |
L |
L1 |
L2 |
B |
R |
重量(kg) |
對應號 |
ZT6.5.36-1 |
18 |
18.5 |
12 |
27 |
27 |
17 |
12 |
24 |
12 |
0.18 |
H1.12-1 |
T6.5.36-2 |
22 |
22.5 |
16 |
33 |
29 |
19 |
13 |
28 |
14 |
0.27 |
H1.12-2 |
ZT6.5.36-3 |
28 |
28.5 |
20 |
41 |
35 |
20 |
14 |
36 |
18 |
0.45 |
H1.12-3 |
ZT6.5.36-4 |
34 |
34.5 |
25 |
47 |
39 |
22 |
16 |
44 |
22 |
0.59 |
H1.12-4 |
ZT6.5.36-5 |
42 |
42.5 |
32 |
57 |
45 |
24 |
18 |
52 |
26 |
0.62 |
H1.12-5 |
ZT6.5.36-6 |
48 |
48.5 |
36 |
64 |
52 |
28 |
20 |
60 |
30 |
1.35 |
H1.12-6 |
ZT6.5.36-7 |
60 |
61 |
48 |
76 |
61 |
30 |
23 |
72 |
36 |
2.20 |
H1.12-7 |
|
| 標記示例:三通18 ZT6.5.36-1 |
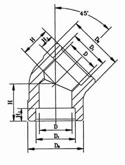
| ● 彎頭 |
|
| |
|